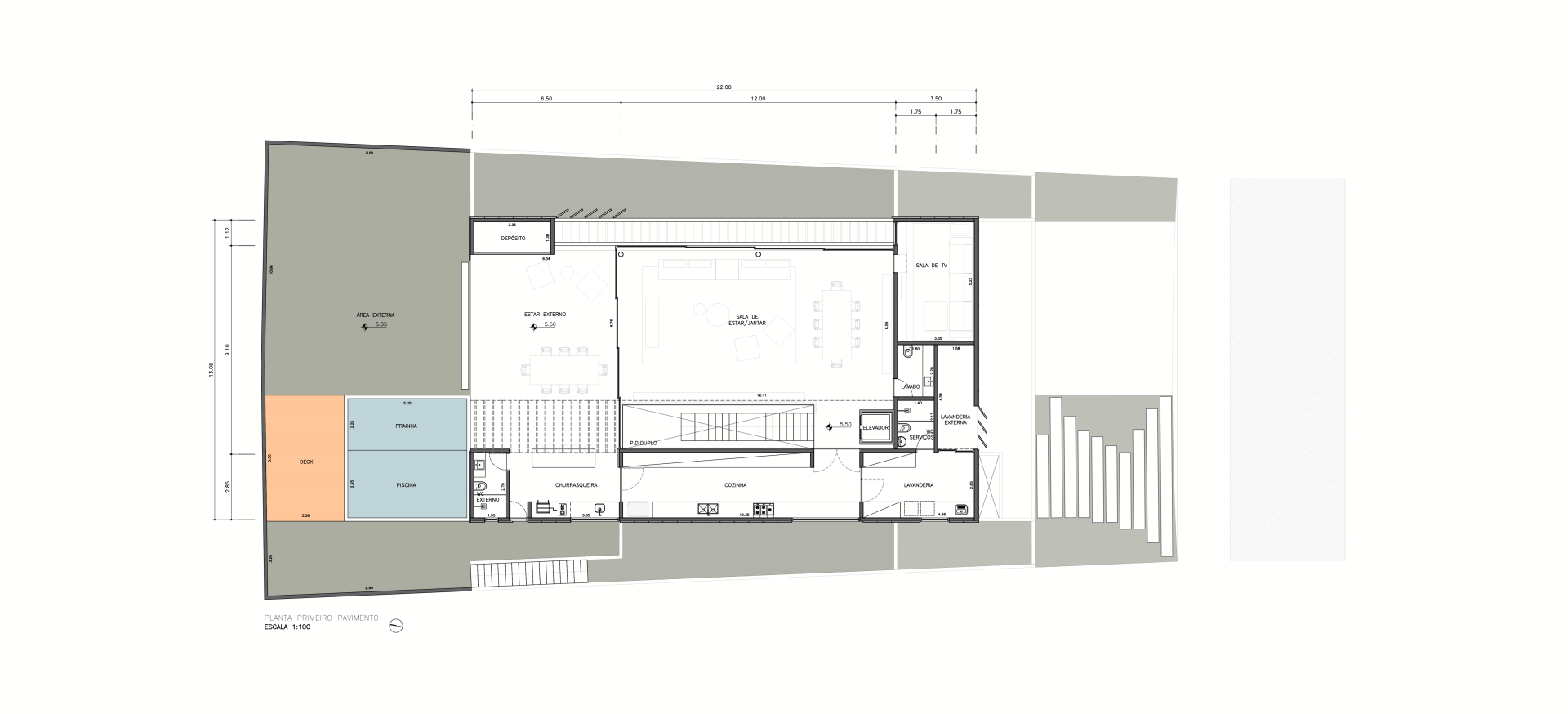
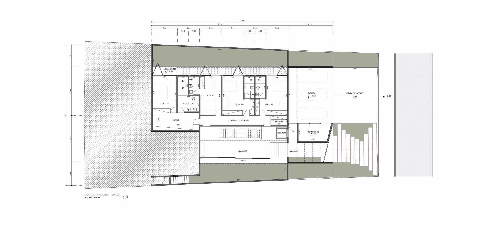
- Ano: 2022
- Superfície: 470m²
- Localização: Campinas - SP
- Projeto de estrutura: StudioBim Engenharia
- Projeto de Instalações: StudioBim Engenharia
- Render: Solo CG
Projetos relacionados
-
465m² , 2021 Guaeca, São Sebastião - SP - Brasil
Residência LI - Guaecá
-
190m² , 2017 Praia do Prumirim, Ubatuba - SP - BrasilResidência SA - Prumirim
-
420m² , 2021 Jundiaí - SP - BrasilResidência FG - Jundiaí
-
355m² , 2021 São Francisco Xavier - SP - Brasil
Residência GS - São Francisco Xavier - Versão 01