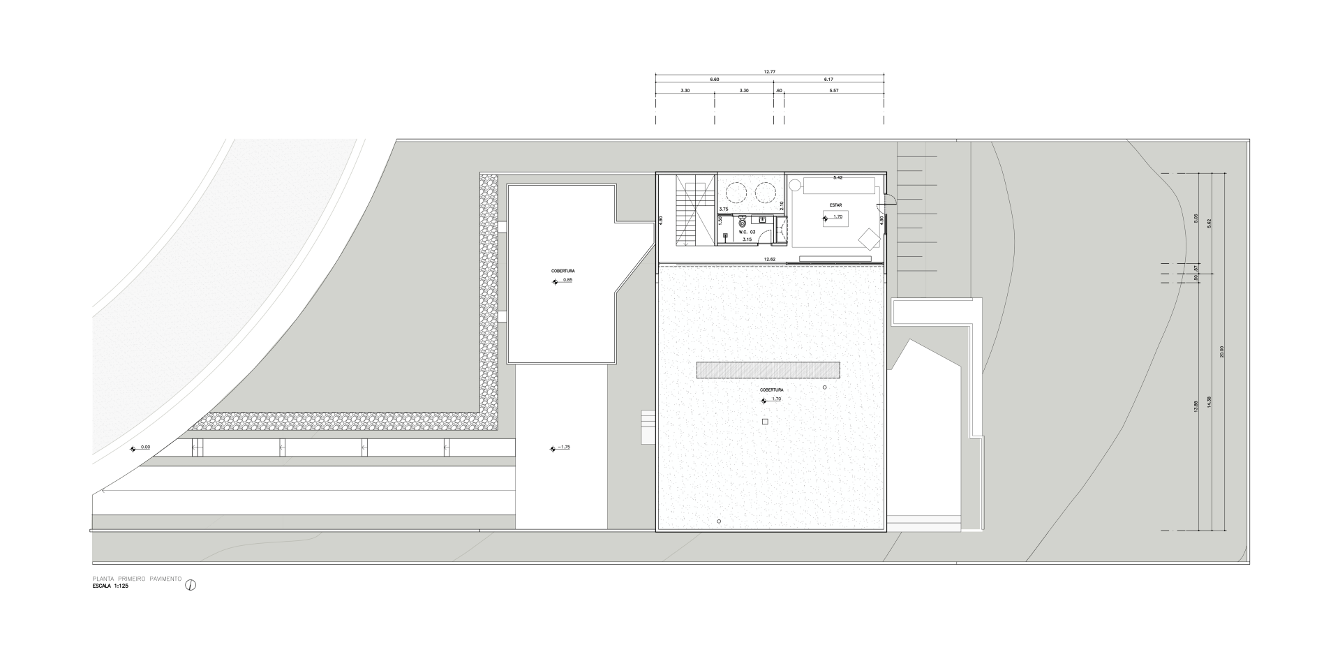
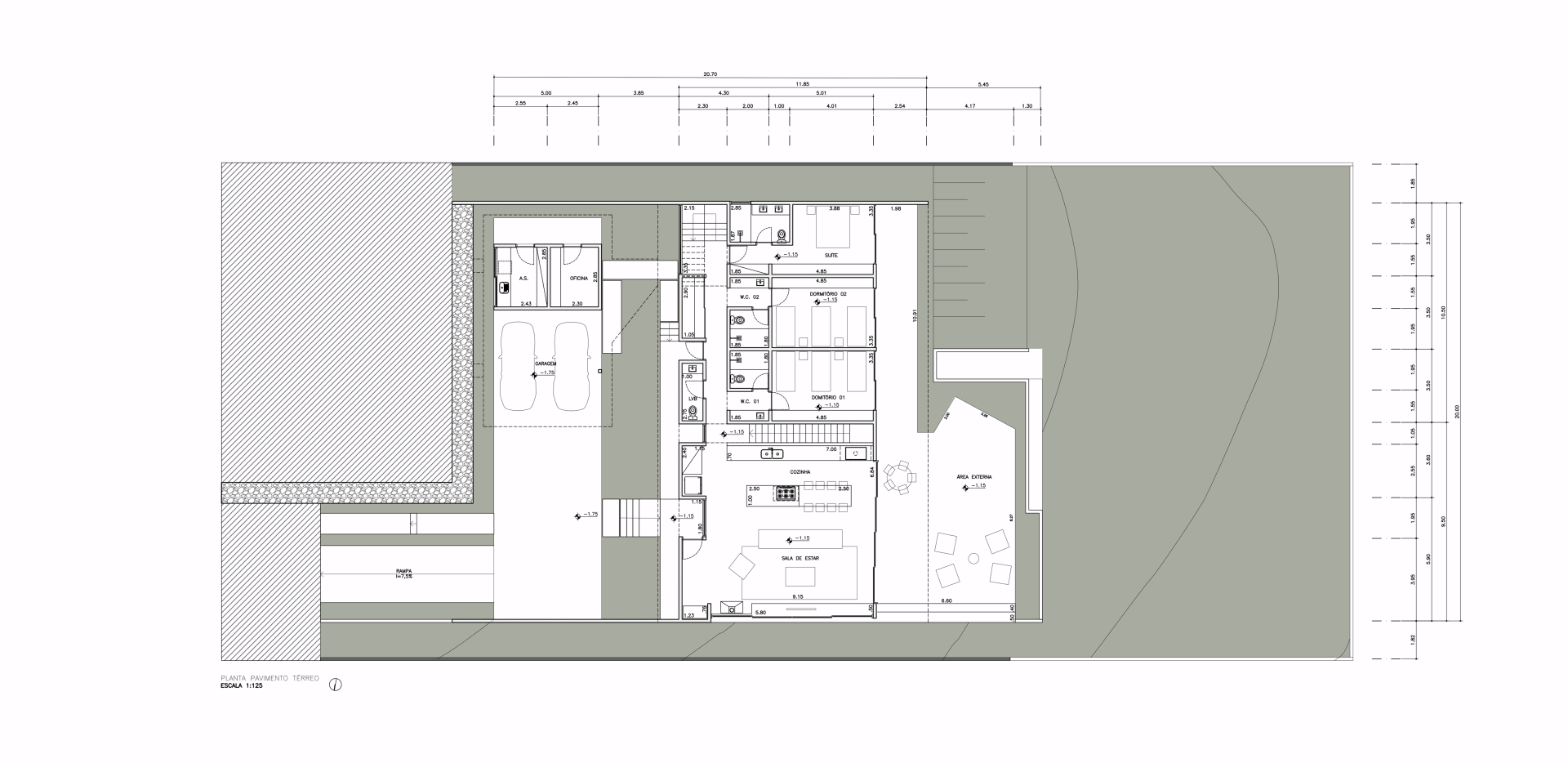
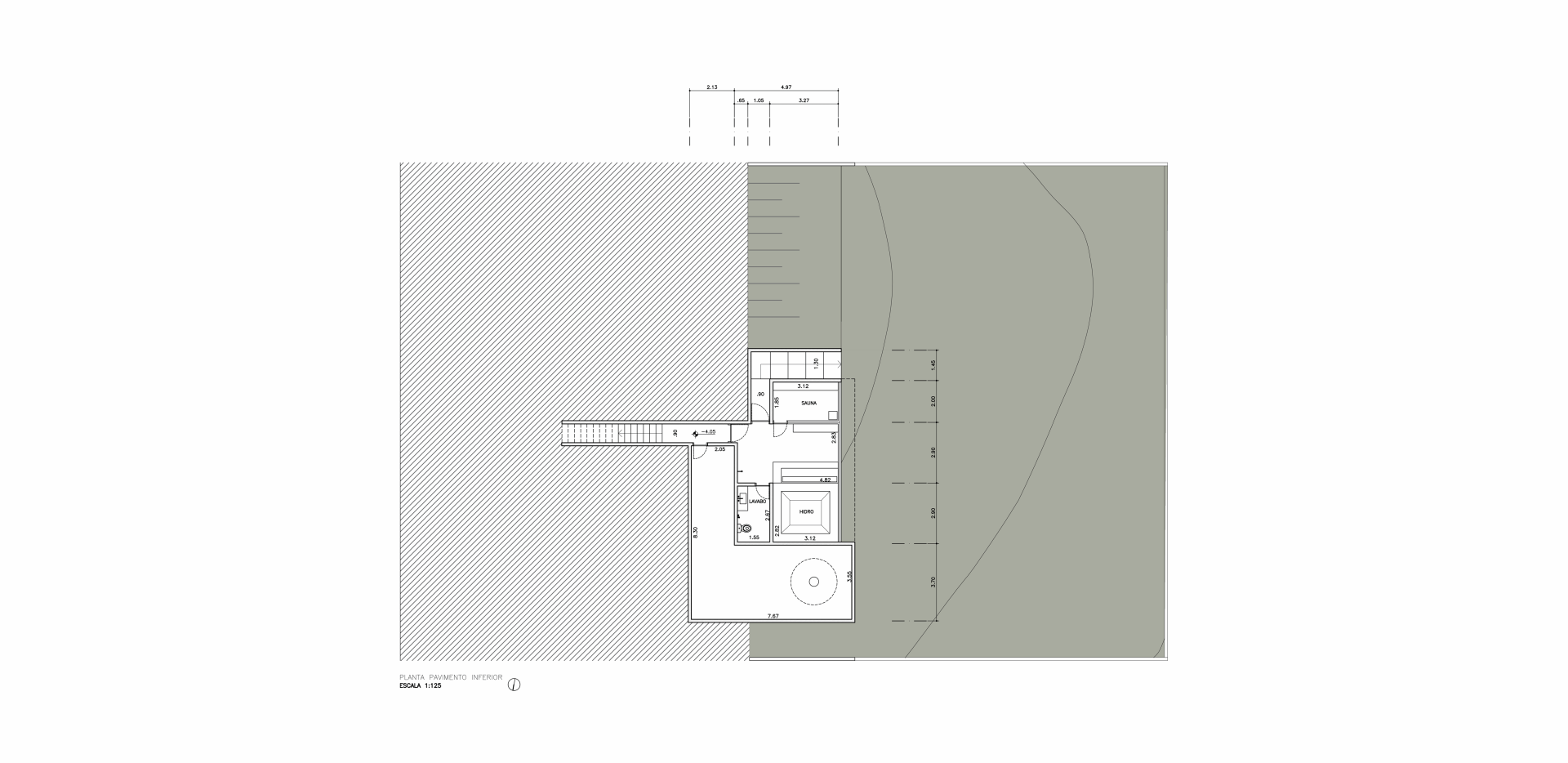
HF House - Sto Antônio do Pinhal

  • Year: 2022
  • Surface: 450m²
  • Localization: Santo Antônio do Pinhal - SP
  • Projeto de estrutura de concreto: Guerra Engenharia
  • Projeto de Instalações elétricas: Solar Engenharia
  • Projeto de Instalações hidráulicas: Kit Projeto
  • Render externo: Solo CG
  • Render interno: GS Studio

Site view
Pedra do Baú

Este site usa cookies para fornecer a funcionalidade necessária do site, melhorar sua experiência e analisar nosso tráfego. Ao usar nosso site, você concorda com nossa Política de Privacidade e uso de cookies.